绑扎准备
(1)核对图纸,严格按施工方案组织绑扎工作。
(2)在梁侧模板上画出箍筋间距,拜访箍筋。
梁钢筋绑扎
(1)首先穿主梁的下部纵向受力钢筋与弯起钢筋,将箍筋按照已画好的间距逐个分开;然后穿次梁的下部纵向受力钢筋及弯起钢筋,并套好箍筋;放主次梁的架立筋;隔一定间距,将架立筋与箍筋绑扎牢固;调整箍筋间距,使间距符合设计要求,绑架立筋,再绑主筋,主次梁同时配合进行。
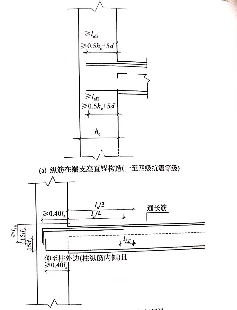
(2)框架梁上部纵向钢筋应贯穿中间节点,梁下部纵向钢筋伸入中间节点,锚固长度不应当小于laE,且伸过中心线不应当小于5d(d为钢筋的直径)的长度要求。框架中间层的端节点处,框架梁上部纵向筋在端节点的锚固长度除不应小于laE外,弯折前的水平投影长度不应当小于0.41aE,弯折后的竖直投影长度应取1.5倍的梁纵向钢筋直径。梁下部纵向筋在中间层端节点中的锚固措施与梁上部纵向筋相同,但竖直线段应当向上弯入节点,如图4-17所示。
(3)梁上部纵向筋的箍筋,宜用套扣法绑
(4)梁钢筋的绑扎与模板安装之间的配合关系如下。
①当梁的高度较小时,梁的钢筋架空在梁顶上绑扎,然后再落位。
②当梁的高度较大(大于等于1.0m)时,梁的钢筋宜在梁底模上绑扎,其两侧模或一侧模后装。
(5)梁板钢筋绑扎时,应当防止水电管线将钢筋抬起或压下。
(6)板、次梁与主梁交叉处,板的钢筋在上,次梁的钢筋居中,主梁的钢筋在下,如图4-18所示;当有圈梁或垫梁时,主梁的钢筋在上,如图4-19所示。

(6)板、次梁与主梁交叉处,板的钢筋在上,次梁的钢筋居中,主梁的钢筋在下,如图4-18所示;当有圈梁或垫梁时,主梁的钢筋在上,如图4-19所示。
(7)当框架节点处钢筋穿插十分稠密时,应注意梁顶面主筋间的净距要有30mm,以利浇筑混凝土。
(8)箍筋在叠合处的弯钩,在梁中应当交错绑扎,箍筋弯钩为135,平直部分长度为10d(d为箍筋直径)。若做成封闭箍时,单面焊缝长度为5d(d为箍筋直径)。

(9)梁端第一个箍筋应当设置在距离柱节点边缘50mm处。梁端与柱交接处箍筋应当加密,其间距与加密区长度均应符合设计要求。
(10)在主、次梁受力筋下均应垫垫块(或塑料卡),保证保护层的厚度。当受力筋为双排时,可以采用短钢筋垫在两层钢筋之间,钢筋排距应符合设计要求。
五隆兴科技发展有限公司
